Typenreihe : 43
Bezeichnung : TUP
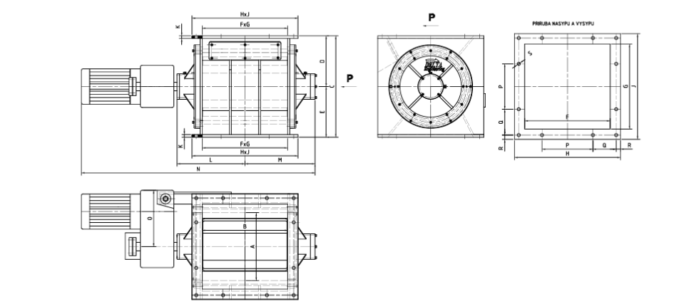
Ausführung : Schweiß- 320-650
Typenreihe : 43
Bezeichnung : TUP
Ausführung : Schweiß- 320-650
Charakteristik und Anwendung :
Die Zellenradschleusen sind für eine gleichmäßige und regulierte Aufgabe oder volumetrische Dosierung von losen feinkörnigen Materialien aus den Behältern bestimmt, oder sie dienen als Druckverschluß und Aufgeber bei Entstaubungsfilteranlagen. Das Hauptkriterium bei Entscheidung über Eignung eines Einsatzes dieser Einrichtung in technologischen Anlagen sind Beschaffenheiten des beförderten Materials. Das Material muß locker und nichtkleberig sein und darf keine Tendenz zur Wölbungsbildung haben. Die Korngröße darf nicht 5 mm überschreiten, die max. zulässige Temperatur des beförderten Materials bei den Zellenradschleusen mit Polytandichtleisten ist 80°C, mit Stahldichtleisten 150°C. Im Falle Benützung der Zellenradschleuse für ein anderes befördertes Material ist es diese Möglichkeit nötig mit dem Hersteller zu besprechen.
Abmessungen und Parameter :
Die Typenreihe von Zellenradschleusen umfasst 8 gründliche Größen, die von den Rotordurchmessern < 320 bis 650 mm > und von den Rotorlängen in ganzem Drehzahlbereich des Rotors und dementsprechenden Förderleistungen abgeleitet wurden. Die Zellenradschleusen werden komplett ausgerüstet, mit Antrieb, Halterungen für Drehzahlüberwachung und mit Verbindungsmaterial geliefert. Bei dem Hersteller ist es möglich nach der technisch-kommerziellen Verhandlung eine s.g. „Adressenausführung“ (Sonder-, bzw. Spezialausführung nach Wünschen und Forderungen des Kunden) zu bestellen.
Beschreibung der Ausführung :
Die Zellenradschleuse besteht aus geschweißtem Stahlgehäuse, das an den Seiten mit Lagerschildern und von oben und unten mit Anschlußflanschen versehen ist. Im Gehäuse ist eine austauschbare Einlagebuchse eingepresst. Der Rotor ist auf 2 Wälzlagern in den Lagerschildern gelagert. Die Lagerschilder und der Rotor sind in der austauschbaren Einlage eingeschoben und mit Schrauben mittels Druckflansche am Gehäuse befestigt. Die Zellen sind am Rotor herausgebildet, die Zellenoberkanten sind mit austauschbaren Dichtleisten, entweder aus Stahl oder aus Polytan – von der Materialtemperatur abhängig, versehen. Seitenabdichtung des Rotors ist mittels Labyrinthe am Umfang zwischen Rotor, Einlage und Lagerschild gelöst. Eine Durchdringung des beförderten Materials zu den Lagern wird mittels einstellbarer Stopfbuchsen verhindert. Der Antrieb wird mit einem auf der Rotorwelle über Spannsatz montierten Aufsteckgetriebe durchgeführt.
Einsatzmaterial :
Ausführung – die Zellenradschleusen werden aus Werkstoff Klasse 11 nach CZ-Norm (entspricht St37) in Schweißausführung hergestellt. Die Dichtleisten werden entweder aus POLYTAN oder aus dem Werkstoff HARDOX oder BRINAR gefertigt.

Auswahl an Kundenreferenzen :
LASSELSBERGER, a.s. / Studénka – Trockenmörtelmischungen
BAUMIT, spol. s r.o.. / Čakovice – Trockenmörtelmischungen
KNAUF PRAHA a.s. – Trockenmörtelmischungen
VÁPENKA VITOŠOV a.s. – Trockenmörtelmischungen
gemahlener Kalk
SSP HLUČÍN s.r.o. – Trockenmörtelmischungen
ALSTOM Power, s.r.o. Brno – Flugasche
ENVEN a.s. – Filterstaub von Entstaubungsfiltern
CEMENT HRANICE a.s. – Zement
Trockenmörtelmischungen
ENVIRMINE spol. s r.o. – Kraftwerksasche
ČMC a.s. / vápenka Mokrá – Kalkhydrat
VÍTKOVICE a.s. – Kraftwerksasche
INTOCAST KOŠICE a.s. – Magnesitfilterstaub
LOVOCHEMIE a.s. – pulverförmige Werkstoffe
RKZ a.s. / Keramička Rakovník – keramischer Rohstoff „Makovec“
SILOsystém s.r.o. ¬– Putzmischungen
ČMC a.s. / cementárna Králův Dvůr – Zement
PSP ENGINEERING a.s. – Kalkhydrat
ČEZ a.s. / elektrárna Dětmarovice – Kraftwerksasche
ŠKO-ENERGO spol. s.r.o – Flugasche
LHODOL s.r.o. , Dolkam Šuja / SK – Kalk
Schenckprocess Slovakia spol. s r.o. – Flugasche
CEMDESIGN spol. s r.o. Trenčín, – Zement
ZVVZ-ENVEN Milevsko a.s. – Filterstaub von Entstaubungsfiltern
Gebrüder Lödige Maschinenbau GmbH – Trockenmörtelmischungen,
pulverförmige Werkstoffe
EXEMPLA, s. r.o. – Kalk